
Propiedades
El que busca, siempre encuentra
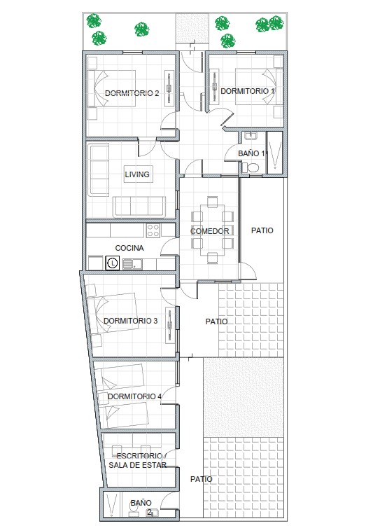
Arriendo Casa Ñuñoa
4D_2B + Estacionamiento
Se arrienda casa pareada, de alrededor de 100 años de antigüedad, en excelente estado de conservación y recientemente remodelada, de 115 m2 construidos, en un terreno de 180 m2, ubicado en sector tranquilo y residencial de Ñuñoa, a pocas cuadras de Av. Irarrázaval.
En su interior, cuenta con 2 dormitorios, 1 habitación para living, comedor, cocina y baño; y, hacia el patio trasero de la casa, cuenta con otros 2 dormitorios, 1 baño, además de 1 quinta habitación que sirve como zona de trabajo, escritorio o estudio.
Importante: no tiene estacionamiento en su interior. Únicamente espacio en la vía pública.
Casa ubicada en el barrio de Suboficiales de Caballería del Ejército, declarado como zona típica en el año 2007, en donde predomina en sus casas un diseño arquitectónico neo-colonial. Se encuentra a unos 6 minutos caminando desde estación Monseñor Eyzaguirre de la línea 3 del metro de Santiago. El barrio cuenta con paraderos de locomoción colectiva, plazas cercanas, jardines infantiles, colegios, supermercados, farmacias, servicios y comercio en general.
Condiciones de Arrendamiento: 1) Valor de arriendo en pesos y reajustable una vez al año según variación del IPC; 2) Rendición de garantía equivalente al valor de un mes y medio de arriendo; y, 3) Garantía de codeudor solidario.
Disponibilidad inmediata.
Importante: No tiene estacionamiento en su interior. Solo un sólo espacio en la vía pública, frente a la casa.
Sólo uso habitacional.
- Sup. útil aproximada: 118 m2.
- Sup. aproximada de terreno: 191 m2.
- VALOR DE ARRIENDO: $1.200.000.-
Plano Referencial de la Propiedad
